Residential Plot – La Cala de Mijas – 0 beds – 0 baths – R5321695

  • €1,870,000
La Cala de Mijas, Costa del Sol, Málaga, Spain
  • Plot, Residential Plot
  • Property Type
  • 0
  • Bedroom
  • 0
  • Bathroom
  • 0
  • Garage
For Sale
La Cala de Mijas, Costa del Sol, Málaga, Spain
  • €1,870,000

Overview

  • Plot, Residential Plot
  • Property Type
  • 0
  • Bedroom
  • 0
  • Bathroom
  • 0
  • Garage

Description

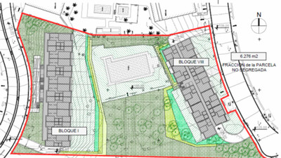
� Plot for Sale | Riviera del Sol, La Cala de Mijas, Málaga �

� Prime location: Riviera del Sol, in La Cala de Mijas, surrounded by the best golf courses on the Costa del Sol and with sea views.

� Ideal project for developers:
• Possibility to build 64 apartments with 2 and 3 bedrooms.
• 86 storage rooms and 86 parking spaces.
• Buildable area: 7,080 m² for residential use (hotel use also permitted).
• Preliminary project for two apartment blocks with 7,017 m² built above ground.
• Building permit granted in 2012 (currently expired).

� Unique opportunity for investment or residential development in one of the most sought-after areas of the Costa del Sol.
Don’t miss out on this fantastic opportunity. If you have any questions, please don’t hesitate to contact us — we will be happy to assist you.

  • Address La Cala de Mijas, Costa del Sol, Málaga, Spain
  • Location La Cala de Mijas
  • Country Spain

Details

  • Property ID: R5321695
  • Price: €1,870,000
  • Bedroom: 0
  • Bathroom: 0
  • Garage: 0
  • Property Type: Plot, Residential Plot
  • Property Status: For Sale

Features

CATEGORY
CONDITION
SETTING
VIEWS

Schedule a Tour

Your information

Contact Information

Enquire About This Property

Similar Listings

Compare listings

Compare
On Sale Home Marbella
  • On Sale Home Marbella